• Family of Five

    Half Beach + Half Mountains

    Always Smiling

  • Sky Ridge | Mayflower, UT

    Elevation - 6,450’

    Panoramic Vistas

  • Area - 4,500 sq. ft.

    Single-Family Residence

    Mountain Get-Away

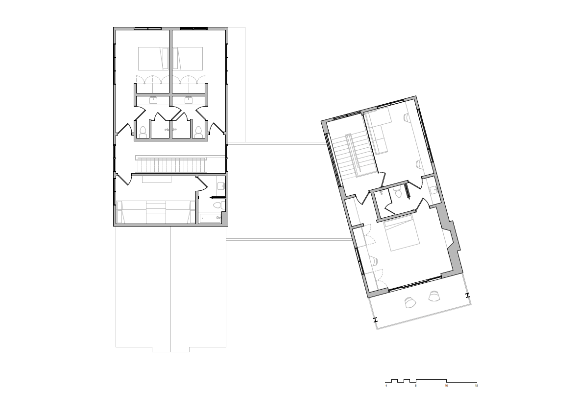
  • Perched high on a ridgeline between Jordanelle Reservoir and Deer Valley Ski Resort, Leo Court is a cozy mountain retreat for a young family of five who split their time between sunny Southern California beaches and snow-covered Wasatch mountains.

    The home is cleanly separated into two distinct living volumes connected by a glass walkway and a large outdoor living room with an oversized hot tub squared up directly on Mount Baldy. A large central living area flows seamlessly from indoor to outdoor, and two primary suites are situated away with their own private balconies and fireplaces.

    Clean classic lines and views in all directions make this timeless mountain retreat one of our favorites!

SKY RIDGE

Previous
Previous

Red Cloud

Next
Next

Marcella